Die Geschichte der Vierung

Die Vierung schließt im Osten an das Mittelschiff an und ist über mehrere Stufen zu erreichen. Über der Vierung erhebt sich der Vierungsturm mit dem Glockenstuhl. Östlich der Vierung liegt der quadratische Altarraum, der mit weiteren vier Stufen über die Vierung hinausführt. In der West-Ost-Achse der Kirche wurden somit zwei komplementär aufeinander bezogene Wege angelegt: ein Abstieg in die Krypta und ein kontinuierlicher Aufstieg zum Hauptaltar. Beide Wege waren ursprünglich durch den gemeinsamen Zugriff auf ein Sepulcrum miteinander verbunden.

  • Abb. 1 von 4 - Bildquelle: Damaris Kriegs, Romy Abraham

    Blick in die Vierung vom Mittelschiff aus

    Eine einschneidende Veränderung war Anfang des 14. Jahrhunderts der Einbau des inzwischen wieder entfernten Lettners. Der Chorbereich war dann den Klerikern vorbehalten, der inszenierte Aufstieg wurde durch eine räumliche Abtrennung abgelöst.

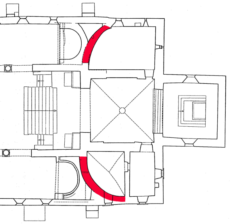
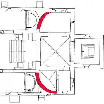
  • Abb. 2 von 4 - Bildquelle: Landesamt für Denkmalpflege im RP Stuttgart, in: Jakobs 1999, Tafel 31 (Detail, ergänzte Markierung)

    In einer ersten Bauphase waren nördlich und südlich der Vierung offene Konchen geplant. Die Relikte dieses ursprünglich geplanten Querhauses lassen sich an der runden Form der Westwand der Sakristei im Süden und des Paramentenraums im Norden ablesen. Allerdings wurden noch in der Frühphase des Baus die Konchen nach Osten hin begradigt und die Durchgänge von der Vierung zu den Seitenräumen zugemauert. Die Gründe für diesen Planungswechsel sind unklar. Vielleicht deuten sie vor allem auf statische Probleme der Kirche.

  • Abb. 3 von 4 - Bildquelle: Landesamt für Denkmalpflege im RP Stuttgart, in: Jakobs 1999, Tafel 9

    Grundriss um 1818

    Auf dem Grundriss aus der Zeit um 1818 lässt sich seitlich der Chortreppe noch vage die Gestaltung des Lettners erkennen.

  • Abb. 4 von 4 - Bildquelle: Landesamt für Denkmalpflege im RP Stuttgart, in: Jakobs 1999, Abb. 197a und 197b

    Ende des 15. Jh. wurde die Vierung neu eingewölbt. Der Schlussstein stellt den hl. Georg dar, der einen Drachen tötet. Links ist die von ihm gerettete Prinzessin zu sehen und rechts ihre Eltern, die vom Schloss herübersehen. Ikonografische und stilistische Kriterien weisen auf eine Entstehung in der Zeit des Abtes Martin von Weißenberg (* um 1470, † 8. Oktober 1508). Der Schlussstein ist in der Reichenauer Georgskirche die früheste gesicherte Darstellung ihres Namensgebers.